Twist S1

Acumulador de 1 serpentina para produção de AQS

Acumulador-produtor de água quente sanitária composta por tanque e serpentina de aço revestida de vitrificado de alta qualidade e isolada com manta de alta densidade. Equipada de série com uma proteção anódica adicional, um registo para inspeção e limpeza e uma tomada para a instalação de uma resistência elétrica, se for necessário. Está desenhado com todas as conexões para poder realizar as instalações mais complexas. A gama inclui uma versão com duas serpentinas (S2) e uma com uma superfície de troca superdimensionada (S1 Max), para atender todas as necessidades de instalação. A grande superfície de troca da serpentina e sua resistência a altas temperaturas tornam a gama Twist S a escolha ideal para as instalações de produção de AQS mais exigentes.

95 °C

Temperatura máxima de trabalho

Serpentina Anti-legionela

Compatível com energia solar

DADOS TÉCNICOS

Capacidade sanitário l 273
Superficie de intercambio da serpentina m2 1,8
Conteúdo água serpentina l 10,4
Potência absorvida kW 44
Caudal nominal serpentina m3/h 1,9
Perda de carga mbar 70
Temperatura max de trabalho °C 95
Pressão max de trabalho AQS bar 10
Pressão max de trabalho serpentina bar 10
Perdas de calor W 85
Classe de eficiência energética C

PRESTAÇÕES ÁGUA QUENTE SANITARIA

Caudal ponta a 40°C primeiros 10 minutos l/10’ 522
Caudal ponta a 40°C primeira hora l/60’ 1,441
Caudal em contínuo 40°C l/h 1,081

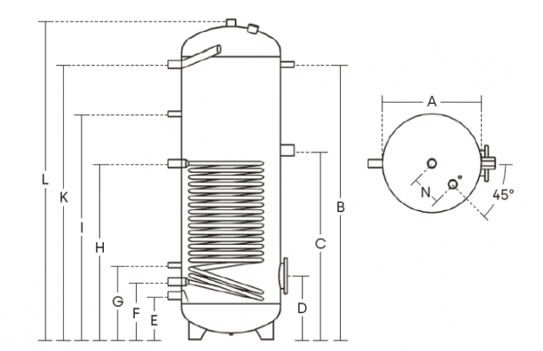
DIMENSÕES

A mm 500
B mm 1390
C mm 955
D mm 320
E mm 220
F mm 290
G mm 375
H mm 890
I mm 1165
J mm -
K mm 1390
L mm 1615
M mm -
N mm 150
Y - Altura total com isolamento mm 1615
Altura máxima em elevação mm 1735
X - Diâmetro acumulador com isolamento Ø mm 600
Flange Ø mm 180/120
Peso em vazio kg 98

CONEXÕES

Saída água quente pulgadas 1
Ânodo pulgadas 1 ¼
Termómetro/Sonda pulgadas 1/2
Resistência eléctrica pulgadas 1 ½
Conexão de bancada (cega) pulgadas 1 ½
Entrada água fria pulgadas 1
Retorno serpentina pulgadas 1
Termostato pulgadas 1/2
saída serpentina pulgadas 1
Recirculação pulgadas 1/2
Saída superior água quente pulgadas 1 ¼
Twist S1 Tw S1 300

Manuais técnicos atuais (1)

Certificações (1)

Tratamento Dryglass

O tratamento de vitrificação Dryglass é realizado de acordo com a norma DIN 4753-3 e UNE 10025 e é obtido pela aplicação de um esmalte resistente à água e ao vapor.

Após a cocção no forno a 850 °C, o esmalte não absorve água e não conduz íons, fazendo com que o esmalte proteja a estrutura do acumulador o 99,9%. O 0,1% restante (devido a eventuais pontos expostos) é eliminado inseririndo dentro um ânodo de magnésio ou um ânodo eletrônico de titânio que protege contra a corrosão.

Principais recursos e benefícios

  • Acumulador em aço vitrificado com uma serpentina
  • Alta resistência a grandes temperaturas até 95°C
  • Alta superficie de intercambio da serpentina
  • Compatível com energia solar
  • Serpentina Anti-legionela

Cookies

(AIC Europe B.V.) quer instalar cookies no seu dispositivo para melhorar o nosso website (com base em relatórios e estatísticas sobre como usa nossa página), além de melhorar as nossas atividades de marketing e a estratégia virtual do grupo AIC (baseando-nos em observações das suas visitas ao nosso site e como você o usa). Os cookies que utilizamos são nossos ou fornecidos pela Google LLC, dos EUA.

Você aceita o que está descrito acima?

Para obter mais detalhes, consulte: Política de Privacidade, Termos de serviço