Twist S1

Acumulador de 1 serpentina para produção de AQS

Acumulador-produtor de água quente sanitária composta por tanque e serpentina de aço revestida de vitrificado de alta qualidade e isolada com manta de alta densidade. Equipada de série com uma proteção anódica adicional, um registo para inspeção e limpeza e uma tomada para a instalação de uma resistência elétrica, se for necessário. Está desenhado com todas as conexões para poder realizar as instalações mais complexas. A gama inclui uma versão com duas serpentinas (S2) e uma com uma superfície de troca superdimensionada (S1 Max), para atender todas as necessidades de instalação. A grande superfície de troca da serpentina e sua resistência a altas temperaturas tornam a gama Twist S a escolha ideal para as instalações de produção de AQS mais exigentes.

95 °C

Temperatura máxima de trabalho

Serpentina Anti-legionela

Compatível com energia solar

DADOS TÉCNICOS

Capacidade sanitário l 1950
Superficie de intercambio da serpentina m2 4,3
Conteúdo água serpentina l 26
Potência absorvida kW 112
Caudal nominal serpentina m3/h 5
Perda de carga mbar 832
Temperatura max de trabalho °C 95
Pressão max de trabalho AQS bar 8
Pressão max de trabalho serpentina bar 10
Perdas de calor W 186
Classe de eficiência energética C

PRESTAÇÕES ÁGUA QUENTE SANITARIA

Caudal ponta a 40°C primeiros 10 minutos l/10’ 3,480
Caudal ponta a 40°C primeira hora l/60’ 5,819
Caudal em contínuo 40°C l/h 2,752

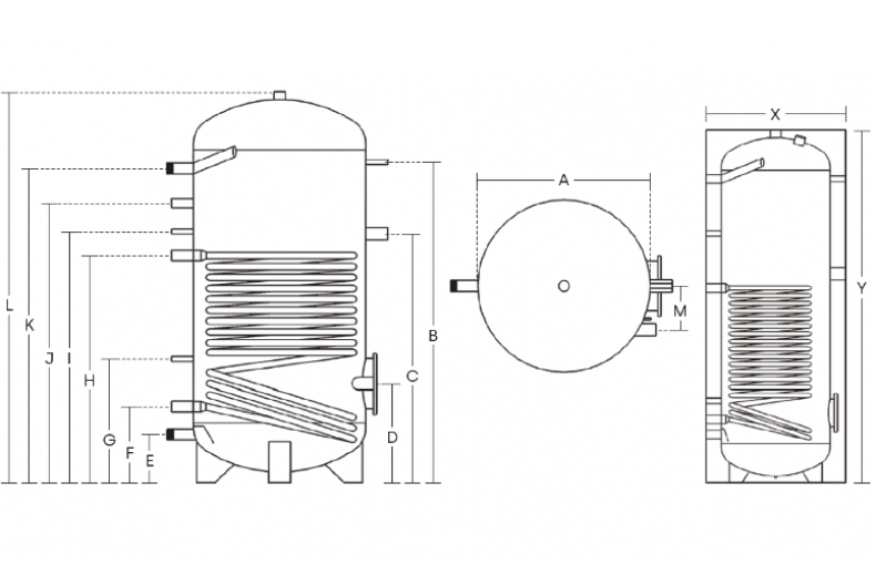
DIMENSÕES

A mm 1100
B mm 2000
C mm 1540
D mm 550
E mm 260
F mm 520
G mm 730
H mm 1430
I mm 1600
J mm 1750
K mm 1990
L mm 2405
M mm 230
N mm -
Y - Altura total com isolamento mm 2470
Altura máxima em elevação mm 2580
X - Diâmetro acumulador com isolamento Ø mm 1300
Flange Ø mm 290/220
Peso em vazio kg 503

CONEXÕES

Saída água quente pulgadas 1 ½
Ânodo pulgadas 1 ½
Termómetro/Sonda pulgadas 1/2
Resistência eléctrica pulgadas 1 ½
Conexão de bancada (cega) pulgadas -
Entrada água fria pulgadas 1 ½
Retorno serpentina pulgadas 1 ¼
Termostato pulgadas 1/2
saída serpentina pulgadas 1 ¼
Recirculação pulgadas 1
Saída superior água quente pulgadas 1 ½
Twist S1 Tw S1 2000

Manuais técnicos atuais (1)

Certificações (1)

Tratamento Dryglass

O tratamento de vitrificação Dryglass é realizado de acordo com a norma DIN 4753-3 e UNE 10025 e é obtido pela aplicação de um esmalte resistente à água e ao vapor.

Após a cocção no forno a 850 °C, o esmalte não absorve água e não conduz íons, fazendo com que o esmalte proteja a estrutura do acumulador o 99,9%. O 0,1% restante (devido a eventuais pontos expostos) é eliminado inseririndo dentro um ânodo de magnésio ou um ânodo eletrônico de titânio que protege contra a corrosão.

Principais recursos e benefícios

  • Acumulador em aço vitrificado com uma serpentina
  • Alta resistência a grandes temperaturas até 95°C
  • Alta superficie de intercambio da serpentina
  • Compatível com energia solar
  • Serpentina Anti-legionela

Cookies

(AIC Europe B.V.) quer instalar cookies no seu dispositivo para melhorar o nosso website (com base em relatórios e estatísticas sobre como usa nossa página), além de melhorar as nossas atividades de marketing e a estratégia virtual do grupo AIC (baseando-nos em observações das suas visitas ao nosso site e como você o usa). Os cookies que utilizamos são nossos ou fornecidos pela Google LLC, dos EUA.

Você aceita o que está descrito acima?

Para obter mais detalhes, consulte: Política de Privacidade, Termos de serviço